Description
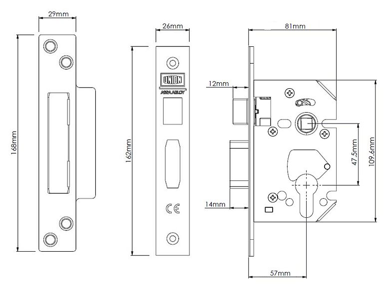
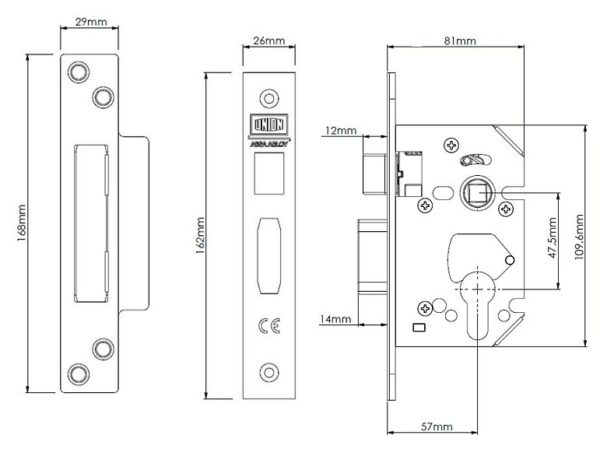
The StrongBOLT euro-profile sashlock features a chamfered bolt design which increases the performance of the lock under side load as well as making a drilling attack more difficult. On top of the chamfered bolt design the sashlock is anti-pick, anti-saw and anti-drill. It features radius inner forends for ease of first fit installation or simple retro fit replacement, it can be installed into many UK mortices without the need for additional carpentry or spoiling the edge of the door. It is suitable for timber doors up to 54mm thick and can be hinged on the left or right and is supplied with radius plastic splinter guard and anti rattle strike. For use with unsprung lever handles. Tested to BS 3621:2007, EN 1634-1 assesed for use on 60 minutes timber fire doors and secured by design accrediation.
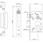
Case width 81mm
Backset 57mm
Centres 47.5mm
Finish Stainless Steel.



